Home Bestand Umbau Visualisierung Freiflächen
         

 

  Bestandsplanung bei Wohn- und Industriegebäuden. Vermessung an gekrümmten Bauwerken oder unzugänglichen Gebäudeteilen mittels Tachymetrie und kalibrierter Fotos. Detailgetreue Ansichten bei aufwendig gestalteten Fassaden. Aufmaß gesamter Gebäude und Anlagen oder Vermessung ausgewählter Bauwerksteile. Unsere Bestandsplanung kann problemlos mit anderen CAD-Systemen weiterbearbeitet werden oder wird von uns zu einer Umbauplanung geführt.  

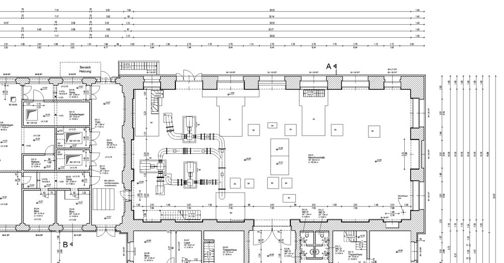
  DREWAG Wasserwerk Dresden Tolkewitz
Das Wasserwerk Dresden Tolkewitz wurde 1896 erbaut und seit dieser Zeit mehrfach modernisiert und umgebaut. Seit 2010 erfolgt eine schrittweise Bestandsaufnahme der Gebäude und Anlagen, mit dem Ziel, bautechnische Bestandspläne sowie ein dreidimensionales Modell des gesamten Wasserwerkes zu erhalten. Bereiche des Wasserwerkes werden regelmäßig für Besucher geöffnet. Dafür erstellt unser Büro Visualisierungen und Animationsfilme.
 

 

 
 
 
 
 
     
< Home Impressum / Datenschutz weiter >